페이지 목차
Day 1
프로젝트 개요
아카이빙 대상 : 연천아트하우스 (벽돌공장에서 아트하우스로 변화되는 과정)
프로젝트 범위 :
•
아카이브 구축
•
사진 전시
•
타임라인(선택)
프로젝트 목표 : 체계적이고 퀄리티 높은 결과물 만들기
기록 유형 : 사진 100장, 영상
사용 툴 :
•
Omeka + Neatline 플러그인
Day 2
멘토 : 변우영
목업
목업 설명문을 작성해 주세요
Day 3
•
AWS 환경에서 OMEKA 구축 완료
◦
버전정보
클라우드 서비스 : AWS(아마존 웹 서비스)
운영체제 : Ubuntu Server v20.04.x LTS 기준
웹서버 : Apache v.2.4.x
웹프로그래밍언어 : PHP v7.4
DBMS : MariaDB v10.3
SSH : Putty
FTP : Xftp
•
플러그인 정보
◦
기본 플러그인 3종(COinS, Exhibit Builder, Simple Pages)
•
테마 정보 : Big Picture
•
Neatline 설치에러 발생. 문제 탐색중
◦
구글 API 키는 문제없이 발급 받음
◦
하지만, Neatline 관리페이지나, 전시에 Neatline을 적용할 수 없는 문제 발생
•
추후 방향성 : 교육기간동안 큰 틀과 규칙을 설정하여 혼자서 아카이브를 작성할 수 있도록 안정화 하는 단계에 진입
◦
정책문 혹은 선언문 작성(simple page 이용)
◦
메타데이터 구조 초안 작성(DublinCore 적극 이용?)
◦
기록 목록 작성
Day 4
•
Neatline 전시 만들기
◦
Neatline, NeatlineFeatures 플러그인 사용
▪
Neatline 2.6.4v
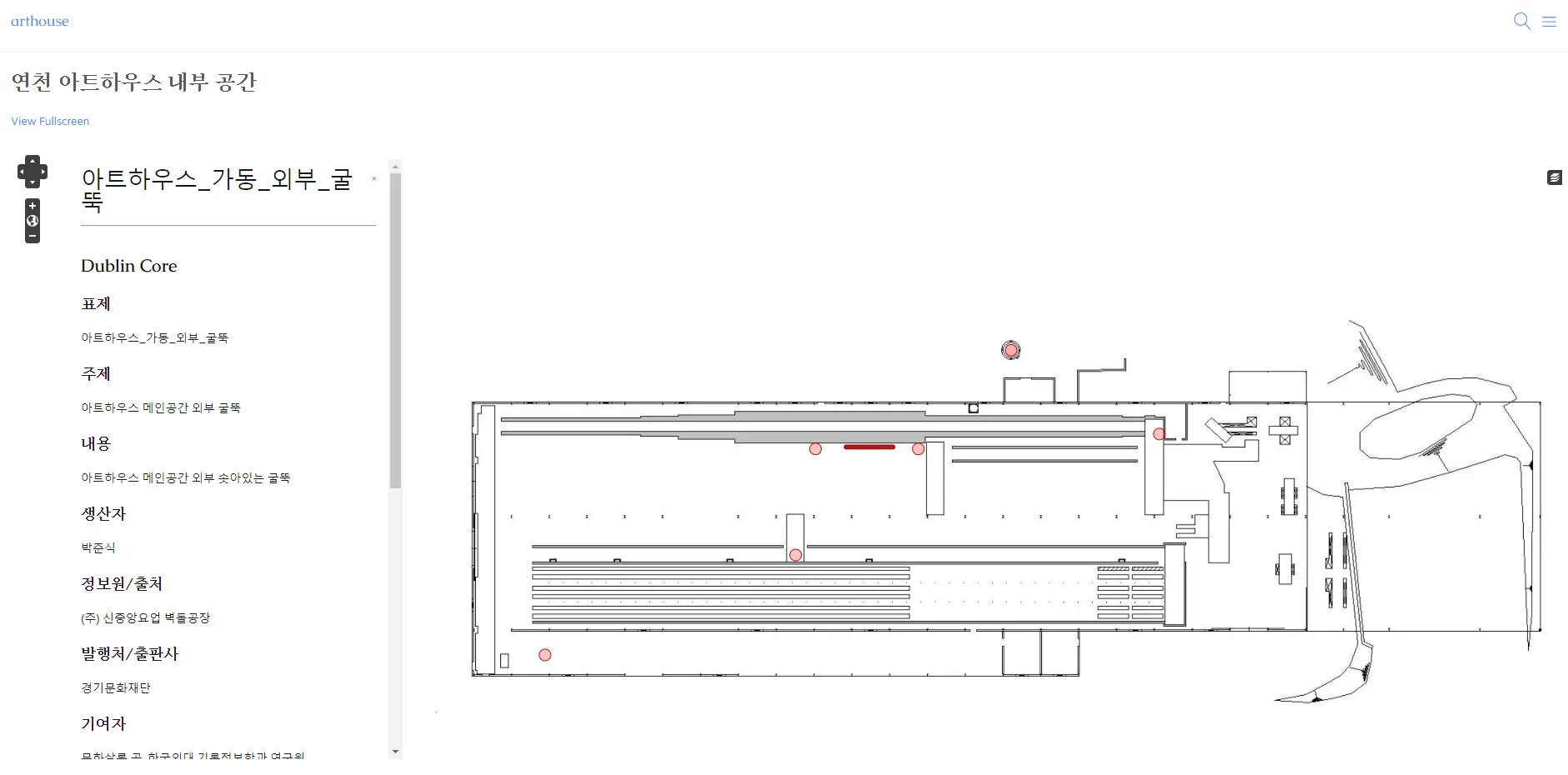
•
연천 아트하우스 내부공간 전시 작성
•
평면도 위에 실제 아이템 건이 위치하는 장소를 OMEKA에 매핑하는 과정을 거침
▪
디자인적으로 심심하거나 썸네일 위치등을 조절할 수 없다는 단점이 있음
▪
•
메뉴 명칭 및 구조 일부 조정
•
ImageMagick 썸네일 생성 복구
◦
설치과정에서 ImageMagick패키지 누락 → 해결
•
메타데이터 요소 일부 보완
•
이후 계획 : 미비된 아이템건 및 메타데이터 작성
Day 5
•
To Do 리스트
•
Omeka + Neatline 플러그인(확정)
Omeka 설치
테마, 플러그인 설정
Neatline 설치실습
Neatline 전시 만들기
Curatescape
정책문 혹은 선언문 작성
아이템 등록
커스텀 지도 그리기
메타데이터 설계
목록 작성 (사진, 영상)
추가 전시 서비스 설계











